BAB IV
PEMBAHASAN STUDI KASUS
a.
Platform Tower
Gambar 4.1 Platform
Tower
Sumber: archdaily.com, 2019
-
Arsitek :
Arsitek OFIS
-
Lokasi :
Ljubljana, Slovenia
-
Kategori : Hotel
-
Luas :
23.415 m2
-
Tahun Proyek :
2018
Hotel ini terdiri dari
21 lantai. Konsep dalam hotel ini mendefinisikan massa sebagai perakitan
platform yang jelas untuk melarutkan massa yang diberikan ke lanskap perkotaan.
Hasilnya adalah Platform Tower, yang menumbuhkan lempengan horizontal yang
berubah mengikuti volume perkotaan yang tetap.
Unsur-unsur horisontal aluminium buram kontras
dengan panel kaca transparan, mengurangi kehadiran bangunan dalam konteks
perkotaan. Tujuannya adalah untuk menggabungkan bangunan dengan konteks
perkotaan yang ada. Area berkaca “diarsir” dengan pola motif Slovene pixelated
dalam bentuk tirai abstrak.
1.
Structural (Struktur)
·
Jenis bahan :
Kaca, baja dan beton.
·
Sistem struktur : Rigid frame.
Gambar 4.2 Denah Platform
Tower.
Sumber: archdaily.com, 2019
·
Sistem Utilitas/Fasilitas : Terdiri dari 185 kamarl, lobi dengan kafe di lantai dasar,
fasilitas SPA dengan kolam renang, dan restoran di atap. Restoran ini juga
memiliki roof top dengan pemandangan
indah menghadap ke kota.
2.
Function (Fungsi)
Fungsi hotel adalah sebagai berikut:
•
Sebagai tempat atau sarana akomodasi untuk memenuhi
kebutuhan tamu sebagai tempat istirahat atau tempat tinggal sementara dalam
perjalanan pariwisata.
•
Sebagai tempat pertemuan (MICE > Meeting, Incentive, Convention, and Exhibition)
•
Sebagai tempat untuk mempromosikan berbagai produk
perusahaan atau bisnis lainnya.
•
Sebagai tempat bersantai, rekreasi, atau menikmati
kesenangan lainnya.
•
Sebagai sarana pokok dalam sebuah perjalanan wisata
3.
Form (Bentuk)
·
Hotel menggunakan rigid frame sebagai sistem strukturnya sehingga bentuk hotel
persegi.
Gambar 4.3 Tipe kamar
pada hotel.
Sumber: archdaily.com, 2019
·
Kaca mendominasi material dinding dari hotel.
·
Berikut merupakan potongan dari hotel Platform
Tower. Lantai bangunan typical sehingga menghasilkan fasad yang sama pula.
Gambar 4.4 Potongan Platform
Tower.
Sumber: archdaily.com, 2019
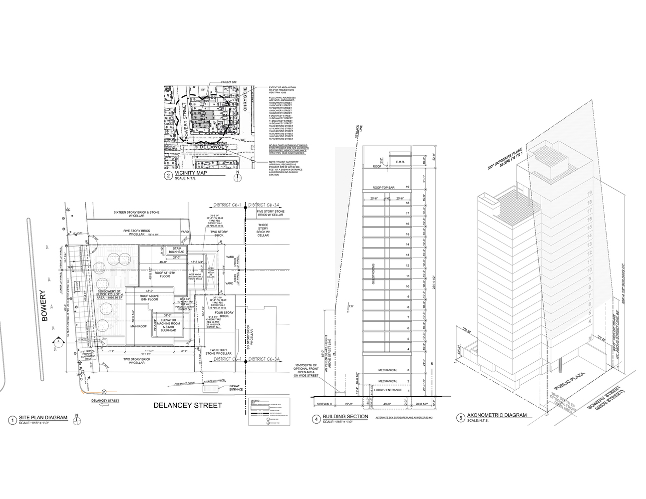
b.
CitizenM Bowery
Gambar 4.5 CitizenM
Bowery
Sumber: archdaily.com, 2019
-
Arsitek :
Concrete, Stephen B. Jacobs Group
-
Lokasi :
Lower East Side, Manhattan, United States
-
Kategori : Hotel
-
Luas :
9290 m2
-
Tahun Proyek :
2018
Terletak di Lower East
Side, Manhattan, bangunan terdiri dari 21 lantai dengan 300 kamar modular menjadi
hotel modular tertinggi di negara ini. Proyek ini adalah hotel kedua citizenM
di New York, setelah Times Square pada 2014.
Peralihan ke sistem modular menghasilkan bangunan
terbagi yang terdiri dari tiga bagian struktural utama. Bagian terbawah hingga
lantai empat tetap terbuat dari beton untuk mempertahankan ruang kemudahan yang
dirancang. 15 lantai modul hotel muncul dari lantai ini. Lantai kesembilan
belas hingga atap dibingkai dengan baja struktural untuk menyediakan ruang
terbuka di tingkat kemudahan atas. Concrete core dan sheaar wall di antara dua
modul menjadi sistem struktur keseluruhan bangunan ini. Di seluruh bangunan
inti beton mandiri dan dinding geser pisau di antara dua modul utara berfungsi
sebagai sistem lateral bangunan.
Sambungan medan modular harus tahan terhadap
kekuatan besar yang dihasilkan oleh gedung tinggi, memberikan toleransi medan
yang cukup, menghindari interferensi dengan modul yang berdekatan, dan
menyediakan ruang untuk merakit modul di lapangan.
1.
Structural (Struktur)
·
Jenis bahan :
Kaca, baja dan beton.
·
Sistem struktur :
Rigid frame dan portal.
Gambar 4.6 Denah CitizenM
Bowery
Sumber: archdaily.com, 2019
·
Sistem Utilitas/Fasilitas : Terdiri dari 300 kamar, bar dan lounge di roof top, restoran bergaya bistro, dan ruang kerja bersama di
lantai dasar
2.
Function (Fungsi)
Fungsi hotel adalah
sebagai berikut:
·
Sebagai tempat atau sarana akomodasi untuk memenuhi
kebutuhan tamu sebagai tempat istirahat atau tempat tinggal sementara dalam
perjalanan pariwisata.
·
Sebagai tempat pertemuan (MICE > Meeting,
Incentive, Convention, and Exhibition)
·
Sebagai tempat untuk mempromosikan berbagai produk
perusahaan atau bisnis lainnya.
·
Sebagai tempat bersantai, rekreasi, atau menikmati
kesenangan lainnya.
·
Sebagai sarana pokok dalam sebuah perjalanan wisata
3.
Form (Bentuk)
·
Hotel menggunakan rigid frame sebagai sistem strukturnya sehingga bentuk hotel
persegi.
Gambar 4.7 Tipe kamar
pada hotel.
Sumber: archdaily.com, 2019
·
Kaca mendominasi material dinding dari hotel.
·
Berikut merupakan potongan dari hotel Platform
Tower. Lantai bangunan typical sehingga menghasilkan fasad yang sama pula.
Gambar 4.8 Potongan CitizenM
Bowery
Sumber: archdaily.com, 2019








Komentar
Posting Komentar